导航条
首页 您的位置:您的位置:首页高压电器高压负荷开关户内高压负荷开关 → FZN12-10D/630型户内真空负荷开关
分栏标签 
产品名称: FZN12-10D/630型户内真空负荷开关
型号规格: FZN12-10D/630型户内真空负荷开关
  放大图片 放大图片
产品类别: 常规产品 -- 高压电器 -- 户内高压负荷开关
分栏标签 
参考价格: 厂价直销
产品品牌: 国产
产品产地: 上海
分栏标签 
可供数量: 批量
供货周期: 现货(或电询)
标签
产品询价 在线交流
13916500500
邮件 91way@163.com
更多分享

分栏标签 
产品简介:
(点击小图查看大图)
FZN12-10D/630型户内真空负荷开关产品详细说明:
FZN12-10D/630-50型户内交流高压负荷开关(以下简称FN12-10D负荷开关)是额定电压为10KV,额定频率50Hz的三相高压开关设备,用于分合负荷电流,闭环电流,空载变压器和电缆充电电流,关合短路电流。配装接地开关的负荷开关,可以承受短路电流。

FZN12-10(R)D/100-31.5型交流高压负荷开关--熔断器组合电器(以上简称 FN12-10(R)D组合电器),是FN12-10D负荷开关与S□LAJ-12(XRNT□-10)高压限流式熔断器组合在一起的户内高压开关设备。它可以可靠开断直至短路电流的任何电流;负荷开关开断工作电流,熔断器开断短路电流,联合开断工作电流与全短路电流之间的任何过电流,同时熔断器通过其撞击器使负荷开关分闸。

FZN12-10D/630型户内真空负荷开关主要技术参数

序号

项目

单位
数值
FN12-10D/630
FN12-10(R)D/630
1
额定电压
KV
10
2
额定频率
Hz
50
3
额定电流
A
630
100
4
雷电冲击耐受电压
kV
对地及相间75、隔离断85
5
1min工频耐受电压
kV
对地及相间42、隔离断48
6
额定热稳定电流
kV
20(4S)
7
额定动稳定电流
kV
50
8
额定关合电流(峰值)
kV
50
50
9
额定短路开断电流(予期值)
kA
31.5
10
临界开断电流时最大I2.t
A2S
按熔断器特征曲线
11
最小开断电流
kA
按熔断器特征曲线
12
额定转移电流
kA
1.5
13
最大开断电流(参考值)
kA
1.8
14
开断空载变压器容量
kVA
1250
15
额定电缆充电电流
A
10
16
额定有功负载电流开断次数
>100
17
撞击器触以负荷开关分闸时间
S
>0.06
18
接地开关热稳定电流
kA
20(2s)
20(2s)
19
接地开关热稳定电流(峰值)
kA
50
50
20
电动机操作电源电压
V
交直流110、220


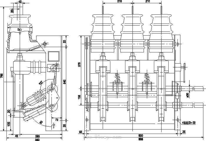
FZN12-10D/630型户内真空负荷开关外形及安装尺寸


FZN12-10D/630型户内真空负荷开关外形尺寸图

FZN12-10D/630型户内真空负荷开关
产品分类
本网站所有产品资料均来源于各有关生产厂商,我们不保证资料的完整性及正确性,如需更详细资料,请直接联系厂商