导航条
首页 您的位置:您的位置:首页机械传动制动器|离合器电磁制动器 → DZSJ1系列交流电磁失电制动器
分栏标签 
产品名称: DZSJ1系列交流电磁失电制动器
型号规格: DZSJ1系列交流电磁失电制动器
  放大图片 放大图片
产品类别: 常规产品 -- 机械传动 -- 电磁制动器
分栏标签 
参考价格: 厂价直销
产品品牌: 国产
产品产地: 上海
分栏标签 
可供数量: 批量
供货周期: 现货(或电询)
标签
产品询价 在线交流
13371811002
邮件 91way@163.com
更多分享

分栏标签 
产品简介:
(点击小图查看大图)
DZSJ1系列交流电磁失电制动器产品详细说明:
1、简介(Applications)

DZSJ1系列交流电磁失电制动器为通电脱离(释放),断电弹簧制动的摩擦式制动器。它主要与Y系列电动机配套成YEJ系列电磁制动三相异步电动机。广泛应用于于冶金、建筑、化工、食品、机床、印刷、包装等机械中,及在断电时(防险)制动等场合。
  这种制动器具有结构紧凑、适用性广、工作频次高、动作灵敏、制动可靠、安装接线方便、无需整流器、制动时间快于直流制动器等优点,是一种理想的自动化执行元件。

2、DZSJ1系列交流电磁失电制动器主要性能参数:

 规格Specifications
 数据Contents
名称Item names
05
08
15
30
40
80
150
配套YEJ电机机座号
YEJ Motors Model Nimbers
71
80
90
100
112
132
160
额定制动力矩(N.m)
Rated Braking Torque
5
7.5
15
30
40
80
150
额定功率P20℃(W)
Rated Power
60
70
80
90
120
200
250
最大工作气隙(mm)
Maximum Working Air Crach δ
0.8
1
1
1
1
1.2
1.2
额定电压(V dc)
Rated Voltage
380V(三相)
允许最高工作转速(rpm)
Allowable Max Speed
3000
3000
3000
3000
3000
3000
3000

3、外形及安装尺寸:OverallandlnstallationDimensions

DZSJ1系列交流电磁失电制动器外形尺寸

 尺寸
型号
d
D1
D2
D3
D4
D5
D6
b
h
H1
H2
L
δ
DZSJ1-05
14.8
134
120
25
3*M8
45
75
5
16.2
46.5
57.5
20
0.4
DZSJ1-08
19.8
152
136
30
3*M8
50
90
6
21.6
48.4
59.4
20
0.4
DZSJ1-15
24.8
170
146
30
3*M8
60
95
8
28.1
60.4
73.4
25
0.4
DZSJ1-30
29.5
188
168
35
3*M12
75
115
8
32.8
62.5
75.5
30
0.5
DZSJ1-40
29.5
215
185
40
3*M12
86
124
8
32.8
66.5
80.5
30
0.5
DZSJ1-80
39.5
250
210
50
3*M14
104
150
12
42.8
68.5
87.5
30
0.6
DZSJ1-150
44.5
291
255
60
3*M14
107
175
12
47.8
84.6
103.6
35
0.6

4、安装:
安装注意事项Warning
摩擦片及衔铁表面不得有油污,必须保持清洁;
安装时必须保证气隙“δ”;
齿轮套不得有轴向窜动。
安装后必须将锁紧螺母锁紧在电机后端盖或法兰盘上。

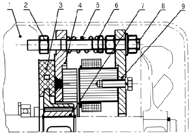
安装示意图:
1、电机端盖
2、锁紧螺母
3、制动盘
4、衔铁组件
5、弹簧
6、调节螺母
7、齿轮套
8、安装螺钉
9、磁轭组件

DZSJ1系列交流电磁失电制动器结构图

DZSJ1系列交流电磁失电制动器

DZSJ1系列交流电磁失电制动器
产品分类
本网站所有产品资料均来源于各有关生产厂商,我们不保证资料的完整性及正确性,如需更详细资料,请直接联系厂商